






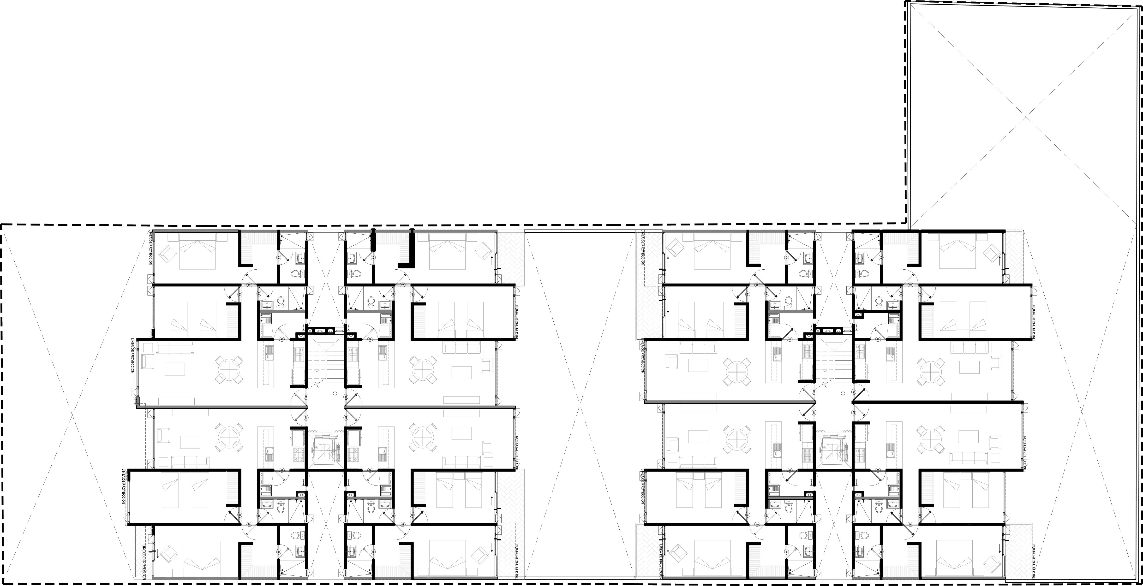
Ubicado en la colonia del Valle, Ciudad de México. El proyecto se compone por dos torres de siete niveles, donde se resuelven 50 departamentos, amenidades y áreas verdes.
Ubicado en la colonia del Valle, Ciudad de México. El proyecto se compone por dos torres de siete niveles, donde se resuelven 50 departamentos, amenidades y áreas verdes. Cabe mencionar que se resolvió con un área libre del 50%, contrastando con el lote típico de la zona, lo que permitió conservar arboles existentes y áreas permeables.
El concepto que rige el proyecto es un juego de luz y sombra en todas sus fachadas, provocado por un juego de diferentes planos verticales y horizontales, generando múltiples volúmenes; la fachada principal es compuesta por vegetación, piedra, madera y cristal, generando un ambiente fresco y natural, consiguiendo una ruptura en el contexto.