






Ubicado en la colonia Roma, Ciudad de México, donde se logró conservar en su totalidad una casa con valor patrimonio cultural urbano.
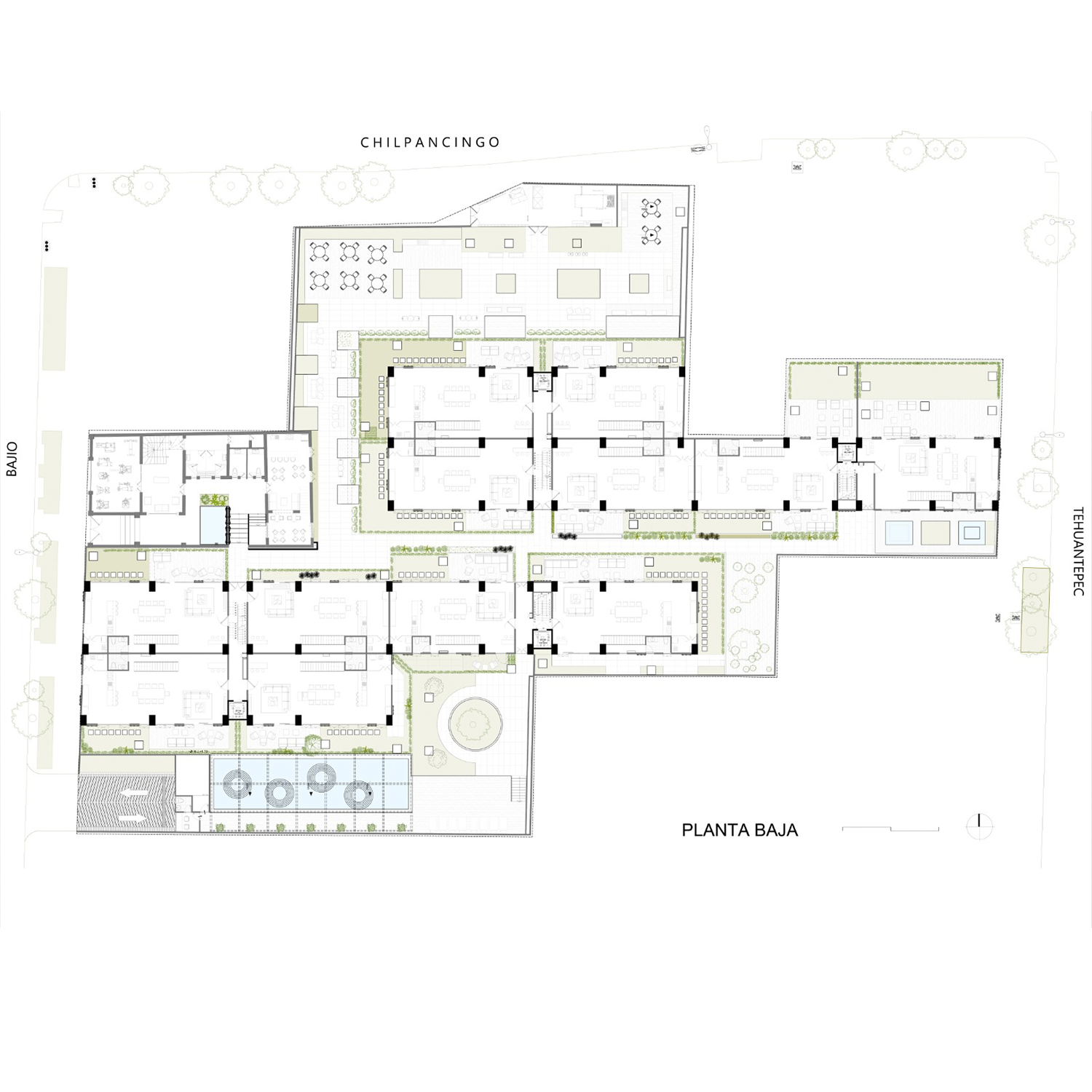
Ubicado en la colonia Roma, Ciudad de México, donde se logró conservar en su totalidad una casa con valor patrimonio cultural urbano. Resultado de la fusión de diferentes predios, con frente a 3 calles se produce un terreno de geometría irregular, ante esta problemática, el proyecto fue resuelto a partir de un eje compositivo en el sentido longitudinal, produciendo dos volúmenes ortogonales, sensiblemente de 7 niveles para dar cabida a 82 departamentos, un nivel de estacionamiento y una casa-club. El conjunto destaca al conservar el 60% de área libre, en contraste con el lote tipo de la zona, lo que permitió conservar arboles existentes y áreas permeables.
Volumétricamente el conjunto proyecta rigidez, que es interrumpida por un par de sustracciones en la parte superior, así como por su envolvente, compuesta por materiales como cristal, vegetación y piedra, que partir de una serie vanos y macizos, diseñados estratégicamente, generan iluminación y ventilación natural hacia el interior de todos los espacios.