




Sobre un corredor urbano, en la colonia Condesa, a unos pasos de nodos viales y de transporte, en una zona con la cadencia que mueve a la ciudad.
Sobre un corredor urbano, en la colonia Condesa, a unos pasos de nodos viales y de transporte, en una zona con la cadencia que mueve a la ciudad. Se propone un elemento de uso mixto, que responde a su contexto con similar dinamismo, así, sensiblemente tres volúmenes son generados conforme emerge el edificio, generando terrazas para áreas verdes.
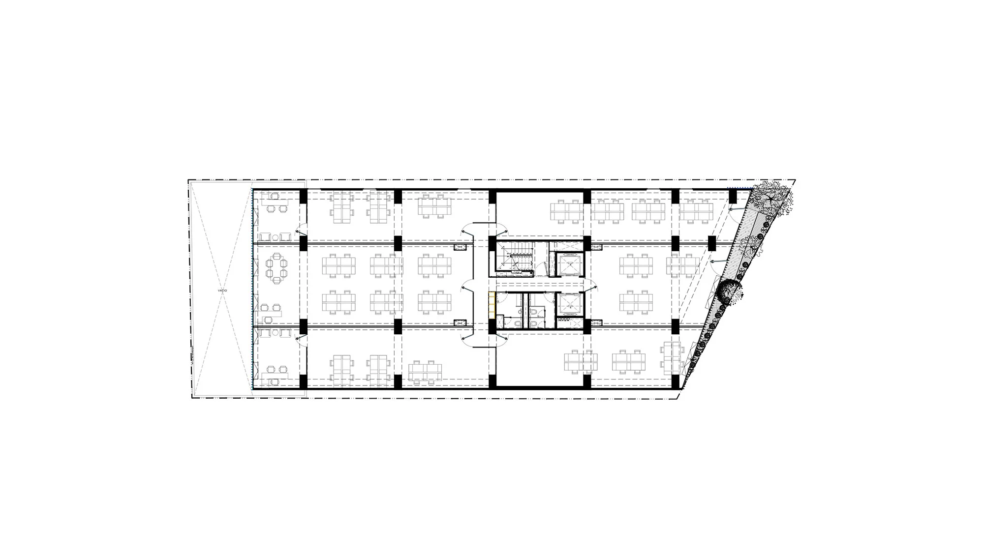
El proyecto consta de locales comerciales en planta baja, acceso y 11 niveles de oficinas en planta libre. La fachada es resuelta mediante doble cristal, así como una serie de parteluces de aluminio mantienen control solar.